技术参数

该试验机采用滑动摩擦的形式,在规定的试验条件下用来评定工程塑料、粉末冶金、合金轴承材料等的使用性能,测定其耐磨特性,可在改变速度、时间、摩擦配偶材料、表面粗糙度、硬度等各种参数情况下进行试验。可用于测量材料的磨损量。该摩擦磨损试验机主要用于评价各种材料在磨粒磨损条件下的耐磨性能。

MMH-5环块三体磨损试验机 | ||||||
| 试验主轴数量 | 1个 | |||||
| 试验力示值精度 | ±1% | |||||
| 主轴转速范围 | 0.1r/min-350r/min(无级可调) | |||||
| 主轴转速精度 | ±0.05r/min | |||||
| 试验转数 | 1~9999999设定 | |||||
| 条件控制方式 | 时间、转数 | |||||
| 标准试样 | 根据要求定制 | |||||
| 环境箱 | 不锈钢 | |||||
| 配备数量 | 1个 | |||||
| 试验附件 | 参照用户提供标准 | |||||
| 输入电压 | 交流380V±10% | |||||
| 输入功率 | 5.5kW | |||||

试验机工作条件
试验机在下列条件下正常工作:
a)在室温10℃-35℃的范围内;
b)相对湿度不大于80%的环境中;
c)周围无震动,无腐蚀性介质和无强电磁干扰的环境中;
d)电源电压的波动范围应不超过额定电压的±10%,频率的波动不应超过额定频率的2%;
e)在稳固的基础上正确安装,水平度为0.2/1000。
主要结构及组成

该机器整体大方、操作方便、快捷,整体有比较高的强度;该设备主要分为以下几个部分:
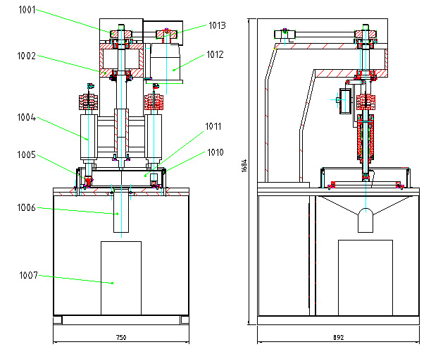
1001 主轴带轮、1002上主体、1004 加载导向机构、1005 试样、1006 漏沙筒、1007 收集箱、1008 底座、1010 防尘机构、1011 集沙机构、1012 GR减速系统;1013 同步传输带等;
基本工作原理
由电机带动1011,1011将动力通过同步带1012传到1001,1001带动主轴旋转,即实现工作方式;在工作过程中1010内的磨料飞尘,设备四周有防护罩,这样避免灰尘的乱飞现象;试验完后将1006上的堵塞拔掉磨过的废料经1006管内流进1007收集箱内;
各主要部件结构简介
1002 上主体——上主体是用高强度钢板焊接而成,整体牢固耐用,表面再经过喷漆处理既起到防锈作用外观又美观;
1011 集沙机构是将实验用的沙料或磨料收集在试验用的辊道上,有效的保证试样与磨料的充分接触使试验数据更加准确;
其工作原理:当试验主轴转动时带动式样,式样铲动附在试验腔内的磨料,因式样整体是一弧面所以铲动的磨料随着式样的弧面运动,所有的磨料都集中到刮沙板的孔眼处,试样与磨料产生摩擦,
1012 GR减速系统——GR减速系统即齿轮减速特点是:强度高、体积小、使用寿命长、噪音低、效率高、可承受较大的径向载荷。
技术与服务

